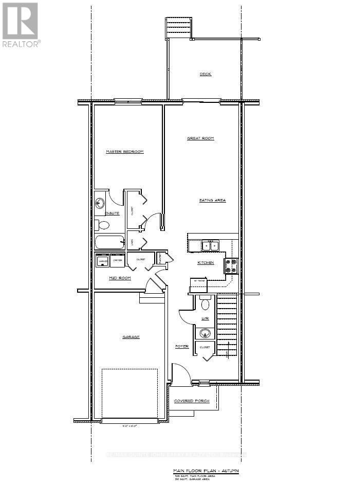
Built by Klemencic Homes, Welcome to the beautifully designed Autumn Model townhome, ideal for first-time buyers or those looking to downsize without compromise. This charming home features a stylish brick and stone exterior and offers 935 sq ft of well-planned, carpet-free main-floor living. Step inside to a spacious foyer that leads into a bright, functional kitchen with ample cabinetry and pot drawers, seamlessly connected to the dining area, well suited for everyday living or entertaining. The inviting living room is filled with natural light from patio doors, creating a warm and welcoming atmosphere. The primary bedroom features a large window and a 4-piece ensuite bath, offering comfort and privacy. Additional highlights on the main floor include convenient laundry, a 2-piece guest bath, and thoughtful finishes throughout. Interior selections are the choice of the buyer, allowing you to personalize the space to suit your style. Ideally located close to all local amenities with easy access to HWY 401, this home offers both comfort and convenience. Occupancy anticipated mid-June 2026 and backed by a 7-year Tarion Warranty. Model home available to view - don't miss this opportunity to make this beautiful new build your own!
EXTRAS: Garage door opener remote(s)
Last updated on : Monday 13th of April 2026 11:40:47 AM
Street : Lot 52 - 55 PARKLAND CIRCLE
City : Quinte West (Murray Ward)
Country : Canada
Postal Code : K8V0R3
Property ID : X12758620
Building Type : Row / Townhouse
Property Type : Single Family
Bedrooms : 1
Bathrooms : 2 + 1
Parking : 3
Parking Type: Attached Garage, Garage